Fully Built Spec Suite Available Now
Discover the ideal space for your medical practice at 755 S. Milwaukee, a Class A medical office building on the Advocate Aurora Condell Campus. Recently redeveloped, this two-story facility offers a new spec suite ready for immediate occupancy. Situated in a prime location, the building features easy access to I-176, downtown Libertyville, and the Metra station, making it perfectly positioned for both physicians and patients. Benefit from ample surface parking, proximity to numerous amenities including malls and restaurants, and competitive leasing terms with generous improvement allowances. Join the largest healthcare provider in Lake County and elevate your practice at this top-tier medical hub.

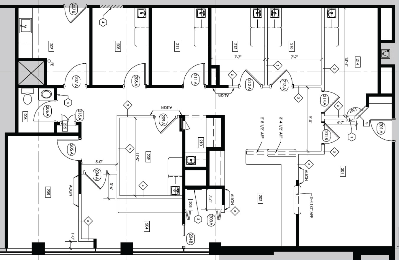
- Total Area: 2,131 square feet
- Exam Rooms: 6 total, one adaptable as a procedure room
- Provider Office: Large private office for medical professionals
- Reception Area: Spacious and open, designed to accommodate up to 5 staff with integrated check-in/ check-out facilities
- Staff Workstation: Centralized area for clinical collaboration
- Break Room: designated space for staff breaks and meals
- Laboratory: On-site lab for convenient patient testing
- Private Restroom: Exclusive amenity for staff and patients' comfort

Regional Leasing Director
Brian Lauck
| Contact Information: | Brian Lauck brian.lauck@lillibridge.com 630.324.6953 |
| Markets: | Illinois, Ohio, Wisconsin |